Проект дома "Холмогоры"

Площадь 141 м²
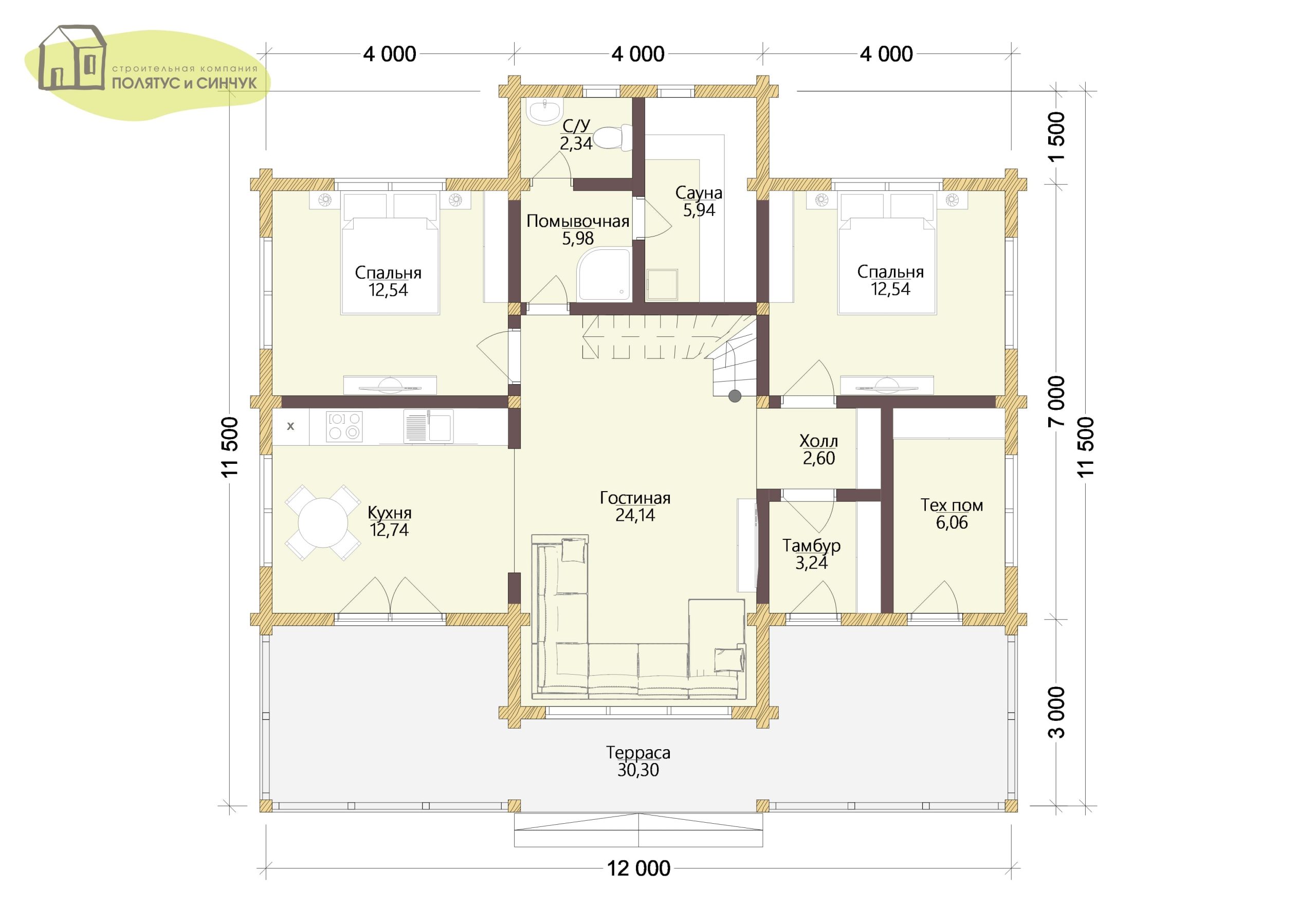
Размер дома 12 х 11.5 м
Балкон Нет
Брус (мм) 185x200
Этажность 2
Санузлов 1
Спален 3
Терраса Есть
9 424 000 
Заказать проект

Особенности проекта:

—  Центральная большая гостиная (24,14 м²) как ядро планировки с прямым выходом на террасу — хорошая социальная зона

—  Симметричное расположение двух спален (по 12,54 м²) обеспечивает баланс и приватность

—  Кухня рядом с гостиной и с доступом к террасе — удобна для приема пищи и организации сервиса

—  Сервисный блок (С/У, помывочная, сауна) сгруппирован компактно, экономит инженерные коммуникации

—  Техпомещение у входа и тамбур 3,24 м² — положительно для хранения и тепловой защиты

—  Второй свет (23,24 м²) визуально расширяет пространство и обеспечивает хорошее естественное освещение

—  Спальня 14,00 м² с ориентированной кроватью и нишами для шкафов использует площадь эффективно

—  Компактное расположение лестницы, минимизирующее занимаемую ею полезную площадь

Планировки дома "Холмогоры"

Первый этаж
Второй этаж
ХОТИТЕ ИЗМЕНИТЬ ПЛАНИРОВКУ?

Это совсем просто! Назначьте встречу с одним из наших архитекторов и на основании ваших идей он создаст индивидуальные планировки.

Изменить планировку

Что включено в цену?

Подготовительные работы
  • Разработка экскизного проекта;
  • Выезд специалиста на участок, привязка строения на участке заказчика, замер перепадов;
  • Пробное бурение, перед монтажем свай (определения структуры состава грунта, глубину промерзания, уровень прохождения грунтовых вод, наличие корней, камней и прочих препятствий, правильный выбор длины свай).
Фундамент железобетонные сваи сечение 200*200 мм, L (длина) — 3 000 мм
  • Привязка строения, геодезическая разбивка осей, нивелирование;
  • Разметка свайного поля;
  • Железобетонные сваи сечением 200х200 мм, высотой 3 метра;
  • Забивка свай механическим способом;
  • Монтаж опорных оголовков;
  • Горизонтальная гидроизоляция.
Стеновой комплект Клееный брус 185х200 мм
  • Подкладочный ряд из древесины хвойных пород сечением 100(h)*200 мм;
  • Стеновой комплект из клееного бруса для постоянного проживания, по проекту, сечение 185(h)*200 мм;
  • Балки перекрытия второго этажа 100(h)*200 мм;
  • Обработка подкладочного ряда и балок перекрытия этажа антисептиком;
  • Оцинкованный крепёж узел Сила, домкраты;
  • Межвенцовый утеплитель SHELTER в чашках перерубов.
Кровля Металлочерепица Classic 0,5
  • Кровельное покрытие – Металлочерепица Classic 0,5;
  • Обрешетка 20*140 и контробрешетка 45*45 мм;
  • Пароизоляционная и гидроизоляционная мембраны от Европейских производителей (Delta, Braas);
  • Утепление 200 мм. каменной ватой ROCKWOOL;
  • Стропильная система сечением 45*190 мм. Крепление на скользящую опору;
  • Трубчатая система снегозадержания.
Окна профиль 70 мм
  • Энергосберегающий двухкамерный стеклопакет, 3 стекла;
  • Глубина профиля 70 мм, 5 внутренних камер;
  • Постоянный инженерный и технический контроль (регулярные выезды технадзора на объект);
  • Устройство обсадных коробок из доски 45*190 мм;
  • Комплект крепежа для монтажа окон;
  • Москитные сетки.
Сопровождение строительства и ход работ
  • Доставка всех материалов на объект – по Москве и Московской области. (в других регионах — уточняйте по телефону);
  • Спецтехника (краны/манипуляторы) – для разгрузки и сборки;
  • Постоянный инженерный и технический контроль (регулярные выезды технадзора на объект);
  • Устройство места проживания рабочих (бытовка);
  • Организация биотуалета.

Сделайте шаг навстречу
своему новому дому

Оставьте заявку и мы свяжемся с Вами в ближайшее время
Какой площади будет Ваш дом или общая площадь всех строений?
Количество этажей Вашего дома
У Вас есть земельный участок?
Где территориально находится Ваш участок?
Выберите технологию строительства
Контактная информация: