Проект дома "Серебряный Бор"

Площадь 747 м²
Размер дома 39.14 х 18.86 м
Балкон Нет
Брус (мм) 270x240
Этажность 2
Санузлов 4
Спален 5
Терраса Есть
Заказать проект

Особенности проекта:

—  Чёткое зонирование: большая общая зона (гостиная + кухня) отделена от приватной части (спальни, кабинет)

—  Щедрые площади гостиной и малой гостиной дают гибкость для семейных и гостевых активностей

— Наличие нескольких санузлов, гардеробных и кладовой улучшает эксплуатационные качества

—  Терраса и входной тамбур/крыльцо повышают комфорт и тепловую устойчивость при входе

—  Центрально расположенная лестница обеспечивает логичную вертикальную связь

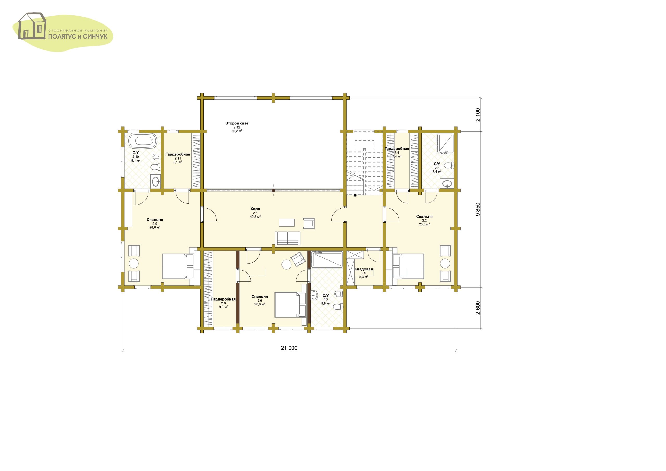
—  Чёткая функциональная зонировка: центральный просторный холл второго этажа (40.8 м²) и спальные зоны второго этажа по бокам

—  Второй свет над холлом обеспечивает хорошее естественное освещение и визуальную масштабность пространства

— Наличие нескольких санузлов на втором этаже и гардеробных повышает удобство для гостей

—  Компактная и логичная циркуляция — минимальные коридоры, короткие переходы между комнатами

— Отдельная кладовая (5.3 м²) и продуманное хранение

Планировки дома "Серебряный Бор"

Первый этаж
Второй этаж
ХОТИТЕ ИЗМЕНИТЬ ПЛАНИРОВКУ?

Это совсем просто! Назначьте встречу с одним из наших архитекторов и на основании ваших идей он создаст индивидуальные планировки.

Изменить планировку

Что включено в цену?

Подготовительные работы
  • азработка экскизного проекта;
  • Выезд специалиста на участок, привязка строения на участке заказчика, замер перепадов;
  • Геологическое исследование (определения структуры состава грунта, глубину промерзания, уровень прохождения грунтовых вод, наличие корней, камней и прочих препятствий).
Стеновой комплект Клееный брус 270х240 мм
  • Подкладочный ряд из древесины хвойных пород сечением 100(h)*200 мм;
  • Стеновой комплект из клееного бруса для постоянного проживания, по проекту, сечение 270(h)*240 мм;
  • Балки перекрытия второго этажа 100(h)*200 мм;
  • Обработка подкладочного ряда и балок перекрытия этажа антисептиком;
  • Оцинкованный крепёж узел Сила, домкраты;
  • Межвенцовый утеплитель SHELTER в чашках перерубов.
Кровля Металлочерепица Classic 0,5
  • Кровельное покрытие – Металлочерепица Classic 0,5;
  • Обрешетка 20*140 и контробрешетка 45*45 мм;
  • Пароизоляционная и гидроизоляционная мембраны от Европейских производителей (Delta, Braas);
  • Утепление 200 мм. каменной ватой ROCKWOOL;
  • Стропильная система сечением 45*190 мм. Крепление на скользящую опору;
  • Трубчатая система снегозадержания.
Окна профиль 70 мм
  • Энергосберегающий двухкамерный стеклопакет, 3 стекла;
  • Глубина профиля 70 мм, 5 внутренних камер;
  • Постоянный инженерный и технический контроль (регулярные выезды технадзора на объект);
  • Устройство обсадных коробок из доски 45*190 мм;
  • Комплект крепежа для монтажа окон;
  • Москитные сетки.
Сопровождение строительства и ход работ
  • Доставка всех материалов на объект – по Москве и Московской области. (в других регионах — уточняйте по телефону);
  • Спецтехника (краны/манипуляторы) – для разгрузки и сборки;
  • Постоянный инженерный и технический контроль (регулярные выезды технадзора на объект);
  • Устройство места проживания рабочих (бытовка);
  • Организация биотуалета.

Сделайте шаг навстречу
своему новому дому

Оставьте заявку и мы свяжемся с Вами в ближайшее время
Какой площади будет Ваш дом или общая площадь всех строений?
Количество этажей Вашего дома
У Вас есть земельный участок?
Где территориально находится Ваш участок?
Выберите технологию строительства
Контактная информация: