Проект дома "Альпийск"
Характеристики
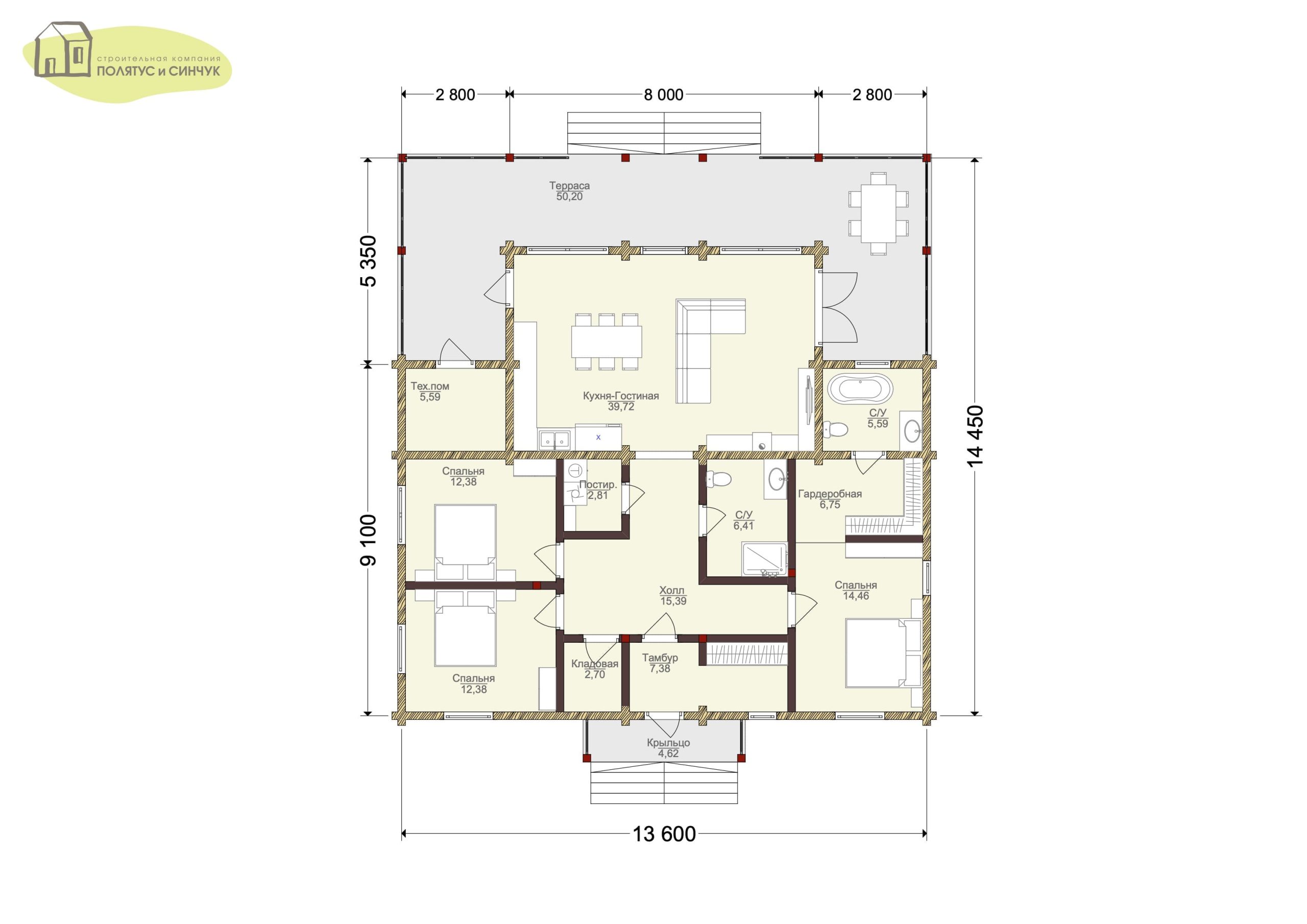
Площадь
202 м²
Размер дома
13.6 х 14.45 м
Балкон
Нет
Брус (мм)
185x200
Этажность
1
Санузлов
2
Спален
3
Терраса
Есть
Рассчитать стоимость
Ипотека
От 35 000 ₽ в месяц
Особенности проекта:
— Чёткое зонирование: большая общая зона кухня-гостиная (39,72 м²) в центре и приватные спальни по бокам
— Большая терраса (50,20 м²) с прямым выходом из гостиной — хорошая связность интерьер/экстерьер
— Наличие технического помещения, кладовой и гардеробной обеспечивает достаточные складские зоны
— Два полноценных санузла и дополнительный гостевой туалет — удобство для семьи и гостей
— Окна со сторон, обеспечивающие хорошую инсоляцию и естественное проветривание
Что включено в цену?
Подготовительные работы
- Разработка экскизного проекта;
- Выезд специалиста на участок, привязка строения на участке заказчика, замер перепадов;
- Пробное бурение, перед монтажем свай (определения структуры состава грунта, глубину промерзания, уровень прохождения грунтовых вод, наличие корней, камней и прочих препятствий, правильный выбор длины свай).
Фундамент железобетонные сваи сечение 200*200 мм, L (длина) — 3 000 мм
- Привязка строения, геодезическая разбивка осей, нивелирование;
- Разметка свайного поля;
- Железобетонные сваи сечением 200х200 мм, высотой 3 метра;
- Забивка свай механическим способом;
- Монтаж опорных оголовков;
- Горизонтальная гидроизоляция.
Стеновой комплект Клееный брус 185х200 мм
- Подкладочный ряд из древесины хвойных пород сечением 100(h)*200 мм;
- Стеновой комплект из клееного бруса для постоянного проживания, по проекту, сечение 185(h)*200 мм;
- Балки перекрытия второго этажа 100(h)*200 мм;
- Обработка подкладочного ряда и балок перекрытия этажа антисептиком;
- Оцинкованный крепёж узел Сила, домкраты;
- Межвенцовый утеплитель SHELTER в чашках перерубов.
Кровля Металлочерепица Classic 0,5
- Кровельное покрытие – Металлочерепица Classic 0,5;
- Обрешетка 20*140 и контробрешетка 45*45 мм;
- Пароизоляционная и гидроизоляционная мембраны от Европейских производителей (Delta, Braas);
- Утепление 200 мм. каменной ватой ROCKWOOL;
- Стропильная система сечением 45*190 мм. Крепление на скользящую опору;
- Трубчатая система снегозадержания.
Окна профиль 70 мм
- Энергосберегающий двухкамерный стеклопакет, 3 стекла;
- Глубина профиля 70 мм, 5 внутренних камер;
- Постоянный инженерный и технический контроль (регулярные выезды технадзора на объект);
- Устройство обсадных коробок из доски 45*190 мм;
- Комплект крепежа для монтажа окон;
- Москитные сетки.
Сопровождение строительства и ход работ
- Доставка всех материалов на объект – по Москве и Московской области. (в других регионах — уточняйте по телефону);
- Спецтехника (краны/манипуляторы) – для разгрузки и сборки;
- Постоянный инженерный и технический контроль (регулярные выезды технадзора на объект);
- Устройство места проживания рабочих (бытовка);
- Организация биотуалета.
Опыт более 15 лет
Качественное
строительство
и надежность,
проверенные време-
нем, для вашего
будущего дома.
строительство
и надежность,
проверенные време-
нем, для вашего
будущего дома.
Фиксированная смета
Качественное
строительство
и надежность,
проверенные време-
нем, для вашего
будущего дома.
строительство
и надежность,
проверенные време-
нем, для вашего
будущего дома.
Собственное производство
Качественное
строительство
и надежность,
проверенные време-
нем, для вашего
будущего дома.
строительство
и надежность,
проверенные време-
нем, для вашего
будущего дома.
Гарантия на дом
Качественное
строительство
и надежность,
проверенные време-
нем, для вашего
будущего дома.
строительство
и надежность,
проверенные време-
нем, для вашего
будущего дома.
Похожие проекты
Сделайте шаг навстречу
своему новому дому
Оставьте заявку и мы свяжемся с Вами в ближайшее время