Проект Бани "Фили"

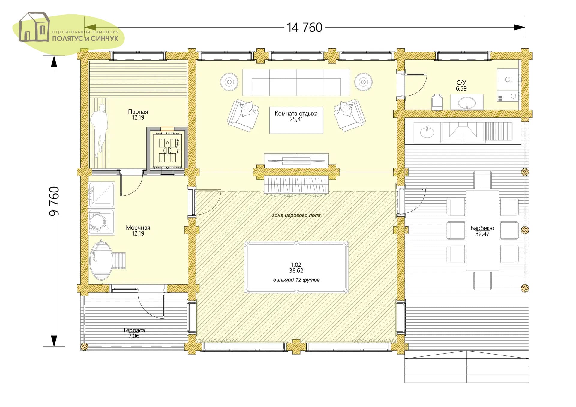
Площадь 134.6 м²
Размер дома 9.76 х 14.76 м
Балкон Нет
Этажность 1
Санузлов 1
Терраса Есть
Заказать проект

—  Хорошая планировочная связность: центральная гостиная/комната отдыха логично объединяет зоны дома

—  Рационально организованы мокрые зоны (кухня/гостиная и санузлы) с компактными инженерными участками

—  Удобное размещение спален/комнат с изоляцией от проходных зон

— Наличие террасы и внутренней зоны с открываемым/выходным пространством повышает функциональность планировки

—  Прослеживается симметрия и выверенная сетка помещений вдоль наружных стен

Планировки Бани "Фили"

ХОТИТЕ ИЗМЕНИТЬ ПЛАНИРОВКУ?

Это совсем просто! Назначьте встречу с одним из наших архитекторов и на основании ваших идей он создаст индивидуальные планировки.

Изменить планировку

Что включено в цену?

Подготовительные работы
  • Разработка экскизного проекта;
  • Выезд специалиста на участок, привязка строения на участке заказчика, замер перепадов;
  • Пробное бурение, перед монтажем свай (определения структуры состава грунта, глубину промерзания, уровень прохождения грунтовых вод, наличие корней, камней и прочих препятствий, правильный выбор длины свай).
Фундамент железобетонные сваи сечение 200*200 мм, L (длина) — 3 000 мм
  • Привязка строения, геодезическая разбивка осей, нивелирование;
  • Разметка свайного поля;
  • Железобетонные сваи сечением 200х200 мм, высотой 3 метра;
  • Забивка свай механическим способом;
  • Монтаж опорных оголовков;
  • Горизонтальная гидроизоляция.
Стеновой комплект оцилиндрованное бревно Ø 22см
  • Устройство обвязки на фундамент (брус сечением 200×200 мм. хвойных пород);
  • Устройство лаг пола и балок перекрытия (брус сечением 100 x200 мм. хвойных пород);
  • Монтаж стен и внутренних перегородок (по проекту) — Оцилиндрованное бревно хвойных пород Ø 22см. (Северный лес, Архангельская область). Возможен диаметр до 300 мм, уточняйте стоимость по телефону;
  • Межвенцовый утеплитель (льно-джутовое волокно);
  • Расходные материалы: нагель деревянный, оцинкованный крепёж узел Сила, скобы, стяжные шпильки, домкраты-компенсаторы, метизы, ГСМ и пр.
Кровля
  • стройство стропильной системы (доска сечением 50×200 мм. хвойных пород) с шагом согласно проектной документации, но не более 60 см.;
  • Устройство обрешетки (доска сечением 25×150 мм хвойных пород);
  • Устройство временной кровли из рубероида или гидроизоляционной пленки.
Сопровождение строительства и ход работ
  • Доставка всех материалов на объект – по Москве и Московской области. (в других регионах — уточняйте по телефону);
  • Спецтехника (краны/манипуляторы) – для разгрузки и сборки;
  • Постоянный инженерный и технический контроль (регулярные выезды технадзора на объект);

Сделайте шаг навстречу
своему новому дому

Оставьте заявку и мы свяжемся с Вами в ближайшее время
Какой площади будет Ваш дом или общая площадь всех строений?
Количество этажей Вашего дома
У Вас есть земельный участок?
Где территориально находится Ваш участок?
Выберите технологию строительства
Контактная информация: