Проект дома "Сосновый Бор"

Характеристики

Площадь 166 м²
Размер дома 13.5 х 12 м
Балкон Нет
Этажность 2
Санузлов 2
Спален 3
Терраса Есть
3 933 000 
Рассчитать стоимость
Ипотека
От 35 000 ₽ в месяц

Особенности проекта:

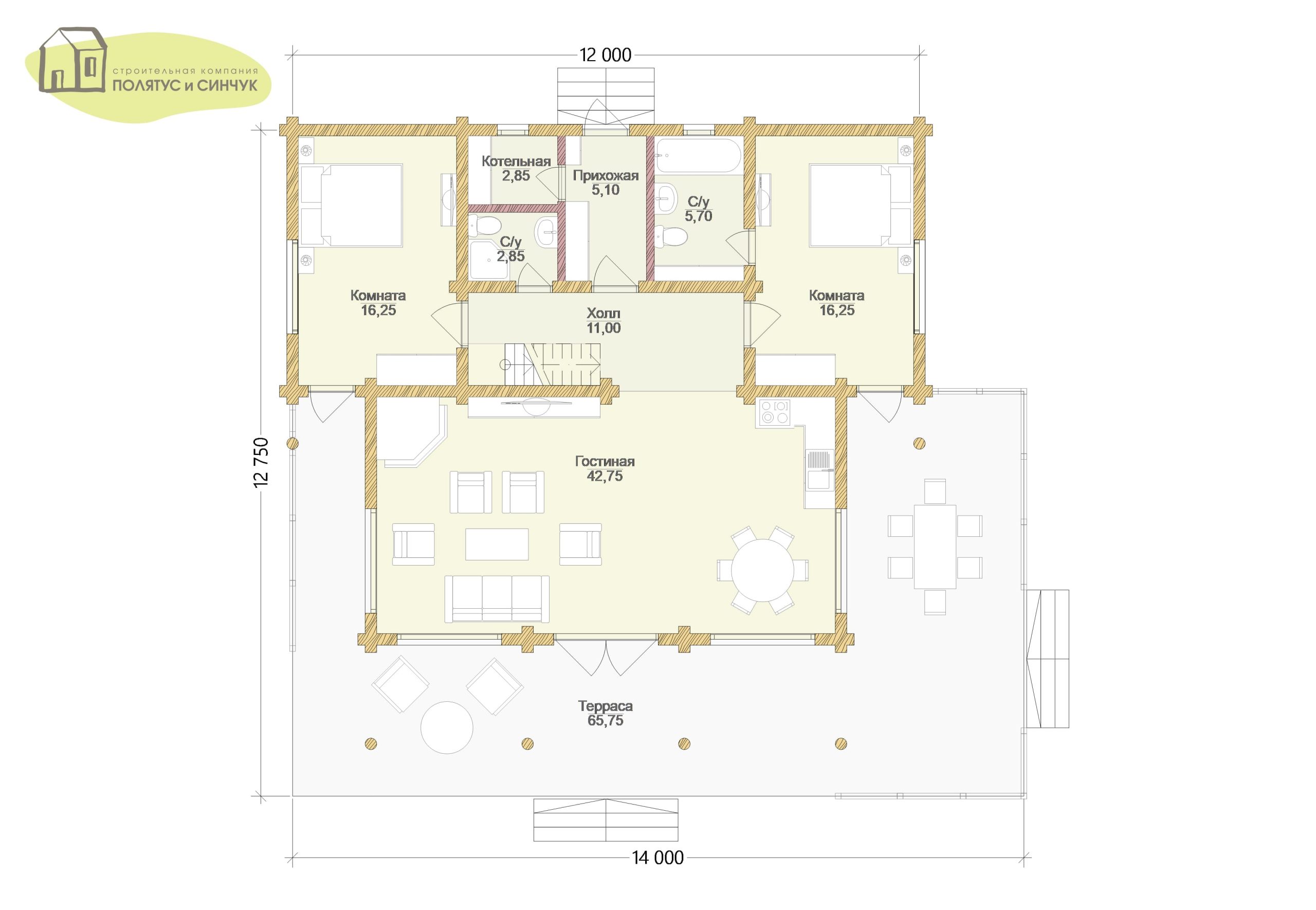
—  Чёткая зонировка: общая зона (гостиная + столовая) отделена от приватных спален

—  Большая гостиная (42,75 м²) с прямым выходом на просторную террасу (65,75 м²) — хорошая связь внутренняя/наружная

—  Симметричное расположение спален по обеим сторонам плана обеспечивает баланс и приватность

—  Наличие котельной и двух санузлов повышает комфорт и функциональность семьи

—  Холл и прихожая выполняют роль буфера при входе, уменьшая сквозняки и повышая удобство перемещений

—  Чёткая зонировка: Лофт (25,00 м²) и Второй свет (42,75 м²) — понятное функциональное деление

—  Эффективное расположение лестницы обеспечивает прямую связь между уровнями

—  Окна на противоположных фасадах дают хорошее естественное освещение и возможность сквозной вентиляции

Планировки дома "Сосновый Бор"

Первый этаж
Второй этаж
ХОТИТЕ ИЗМЕНИТЬ ПЛАНИРОВКУ?

Это совсем просто! Назначьте встречу с одним из наших архитекторов и на основании ваших идей он создаст индивидуальные планировки.

Изменить планировку

Что включено в цену?

Подготовительные работы
  • Разработка экскизного проекта;
  • Выезд специалиста на участок, привязка строения на участке заказчика, замер перепадов;
  • Пробное бурение, перед монтажем свай (определения структуры состава грунта, глубину промерзания, уровень прохождения грунтовых вод, наличие корней, камней и прочих препятствий, правильный выбор длины свай).
Фундамент железобетонные сваи сечение 200*200 мм, L (длина) — 3 000 мм
  • Привязка строения, геодезическая разбивка осей, нивелирование;
  • Разметка свайного поля;
  • Железобетонные сваи сечением 200х200 мм, высотой 3 метра;
  • Забивка свай механическим способом;
  • Монтаж опорных оголовков;
  • Горизонтальная гидроизоляция.
Стеновой комплект оцилиндрованное бревно Ø 22см
  • Устройство обвязки на фундамент (брус сечением 200×200 мм. хвойных пород);
  • Устройство лаг пола и балок перекрытия (брус сечением 100 x200 мм. хвойных пород);
  • Монтаж стен и внутренних перегородок (по проекту) — Оцилиндрованное бревно хвойных пород Ø 22см. (Северный лес, Архангельская область). Возможен диаметр до 300 мм, уточняйте стоимость по телефону;
  • Межвенцовый утеплитель (льно-джутовое волокно);
  • Расходные материалы: нагель деревянный, оцинкованный крепёж узел Сила, скобы, стяжные шпильки, домкраты-компенсаторы, метизы, ГСМ и пр.
Кровля
  • Устройство стропильной системы (доска сечением 50×200 мм. хвойных пород) с шагом согласно проектной документации, но не более 60 см.;
  • Устройство обрешетки (доска сечением 25×150 мм хвойных пород);
  • Устройство временной кровли из рубероида или гидроизоляционной пленки.
Сопровождение строительства и ход работ
  • Доставка всех материалов на объект – по Москве и Московской области. (в других регионах — уточняйте по телефону);
  • Спецтехника (краны/манипуляторы) – для разгрузки и сборки;
  • Постоянный инженерный и технический контроль (регулярные выезды технадзора на объект);

Похожие проекты

Сделайте шаг навстречу
своему новому дому

Оставьте заявку и мы свяжемся с Вами в ближайшее время
Какой площади будет Ваш дом или общая площадь всех строений?
Количество этажей Вашего дома
У Вас есть земельный участок?
Где территориально находится Ваш участок?
Выберите технологию строительства
Контактная информация: