Проект дома "Савелово"

Характеристики

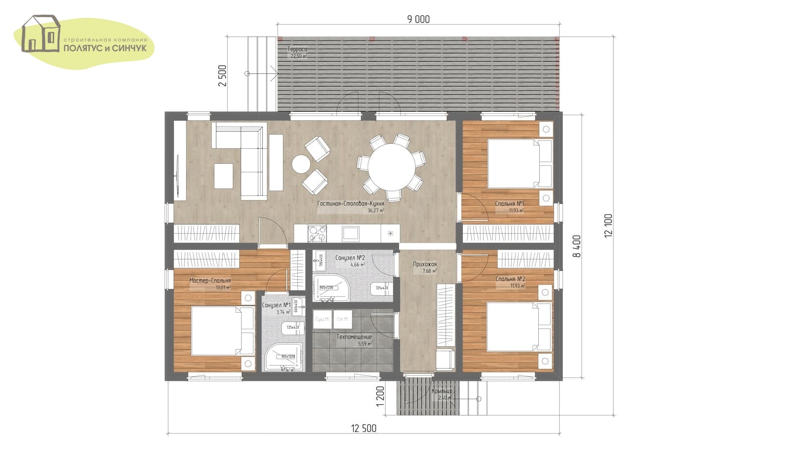
Площадь 129.9 м²
Размер дома 12.5 х 12.1 м
Балкон Нет
Этажность 1
Санузлов 2
Спален 3
Терраса Есть
6 122 000 
Рассчитать стоимость
Ипотека
От 35 000 ₽ в месяц

Особенности проекта:

—  Четкое зонирование: большая общая зона (гостиная-столовая-кухня) в центре и приватные комнаты по бокам

—  Прямая связь общей зоны с террасой — удобная организация наружно-внутреннего пространства

—  Наличие двух санузлов и отдельного технического помещения повышает функциональность

—  Три спальни включая мастер-спальню обеспечивают комфорт для семьи

—  Все жилые помещения имеют наружные окна — хорошее естественное освещение

Планировки дома "Савелово"

ХОТИТЕ ИЗМЕНИТЬ ПЛАНИРОВКУ?

Это совсем просто! Назначьте встречу с одним из наших архитекторов и на основании ваших идей он создаст индивидуальные планировки.

Изменить планировку

Что включено в цену?

Фундамент
  • Забивные сваи 150х150х3000
  • Гидроизоляция между сваей и обвязкой рубероид
Цокольное перекрытие
  • Нижняя обвязка 150х150мм (пиломатериал естественной влажности)
  • Лаги доска сухая строганая 45х190 мм камерной сушки
  • Утепление 200мм (плитный утеплитель)
  • Ветровлагозащитная супердиффузионная мембрана
  • Пароизоляция
  • Проклейка пленок скотчем
Несущие стены
  • Каркас внешних стен доска сухая строганая 45х140 мм камерной сушки
  • Утепление плитное 150мм (плитный утеплитель)
  • Ветровлагозащитная супердиффузионная мембрана
  • Пароизоляция
  • Проклейка пленок скотчем
  • Внешняя отделка Имитация бруса 20*140 мм
Внутренние перегородки
  • Каркасные: доска сухая строганая 45х90мм / 45х140мм камерной сушки (по проекту)
  • Утепление 100мм / 150мм* плитный утеплитель (*по проекту)
  • Ветровлагозащитная супердиффузионная мембрана
  • Пароизоляция
  • Проклейка пленок скотчем
Кровля
  • Стропила 45х190мм камерной сушки
  • Утепление 200мм (плитный утеплитель)
  • Обрешетка 20х90мм
  • Контр-обрешетка брусок камерной сушки 45х45 мм по ветрогидроизоляции
  • МЕТАЛЛОЧЕРЕПИЦА (цвет на выбор)
  • Водосточная система (пластик)
  • Система снегозадержания
  • Выносы 50см
  • Подшив свесов кровли: планкен 20*90 мм
Окна
  • Оконные конструкции ПВХ, белый цвет
  • 2-х камерный стеклопакет (3 стекла)
  • Наличники внешние планкен 20*90 мм
Двери
  • Входная: ПВХ
Пол на террасе
  • Нет

Похожие проекты

Сделайте шаг навстречу
своему новому дому

Оставьте заявку и мы свяжемся с Вами в ближайшее время
Какой площади будет Ваш дом или общая площадь всех строений?
Количество этажей Вашего дома
У Вас есть земельный участок?
Где территориально находится Ваш участок?
Выберите технологию строительства
Контактная информация: